Engineered fire safety, tailored for your needs.

Protecting What Matters, Wherever You Are.

Fire Shield Consulting designs smarter fire protection strategies that keep your business safe, compliant, and resilient—delivering tailored solutions for commercial, industrial, mining, manufacturing, retail, and oil & gas operations, wherever the risks may be.

About Us

Fire Shield Consulting is a leading fire engineering consultancy dedicated to delivering tailored fire protection solutions for commercial, industrial, and mining clients. Our commitment to safety, compliance, and business continuity drives us to deliver innovative fire protection strategies. Our team of registered professional engineers leverages industry-leading expertise, utilizing advanced fire modelling tools, fire risk assessments, and performance-based designs to deliver scalable, compliant, and cost-effective solutions. We ensure every project meets your unique fire safety needs while adhering to fire codes, standards, regulations, and bylaws.
We are based in Pretoria but we serve in all nine provinces in South Africa.

Our services

Our services can be divided into three categories: Compliance & Risk Management, Fire Engineering & Design, and Implementation & Certification. We provide tailored solutions to minimize risks, meet regulations, and deliver effective fire safety systems. Contact us today and secure your business with expert fire protection.

Compliance & Risk Management services

Fire Risk Assessments

Our fire risk assessments identify potential fire hazards, evaluate risks, and recommend tailored mitigation strategies to ensure occupant safety and asset protection. Conducted by experienced professionals, these assessments comply with local and international Fire Regulations.

Compliance Audits

We conduct thorough compliance audits to verify that your fire protection systems and procedures meet regulatory requirements. Our audits assess adherence to SANS, ASIB, or NFPA standards, identifying areas of non-compliance and providing actionable recommendations to ensure full regulatory alignment and enhanced safety.

Gap Analysis

Our gap analysis services evaluate
existing fire safety measures against industry standards and best practices. By identifying deficiencies and areas for improvement, we provide detailed reports and prioritized recommendations to bridge gaps, ensuring robust fire protection and compliance with SANS 10400, ASIB, or NFPA requirements.

Fire Engineering & Design services

Rational Fire Designs

Our rational fire design solutions provide innovative, performance-based approaches to fire safety, optimizing protection while meeting specific project requirements. Using advanced engineering techniques and fire modelling tools, we develop tailored strategies that balance safety, functionality, and cost-effectiveness.

Fire Suppression Systems

Protect your facility, assets, and employees with expertly designed fire suppression systems. At Fireshield Consulting, we provide customized solutions that detect and suppress fires quickly, minimizing damage and downtime. Our systems are fully compliant with SANS, ASIB, and NFPA standards, giving you peace of mind and enhanced safety.

Detection & Alarm Systems

We design and implement fire detection and alarm systems tailored to each
application, in full compliance with SANS 10139 or NFPA 72 standards. Our solutions ensure rapid, reliable detection and prompt response to protect people, assets, and operations.

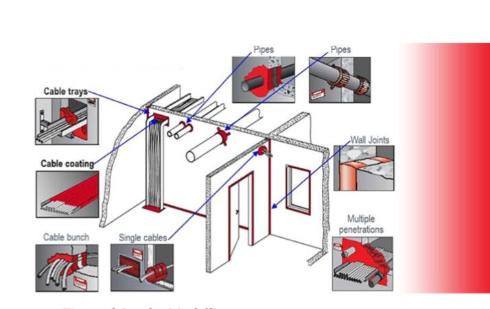
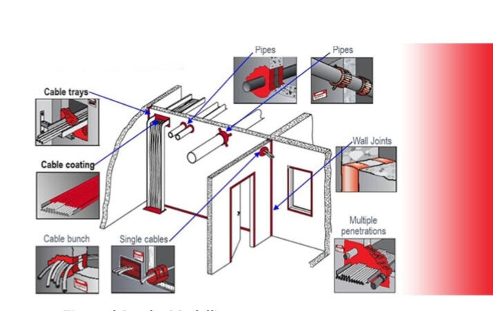
Passive Fire Protection

Our passive fire protection solutions are engineered to contain fires and limit their spread, enhancing safety and protecting structures without active intervention. These systems include fire rated walls, doors, fire sealing, and compartmentation measures, designed to maintain structural integrity and prevent fire and smoke propagation.

Fire & Smoke Modelling

We use CFAST and PYROSIM to simulate fire growth, smoke movement, and heat
transfer within buildings. These models provide valuable insights into occupant safety, evacuation times, and system performance.

Evacuation Modelling

We use PATHFINDER to simulate occupant movement and evacuation scenarios during a fire or emergency. This analysis helps assess evacuation times, identify
potential bottlenecks, and optimize building layouts to ensure safe and efficient egress.

Implementation & Certification

Underwriters & Client Engagements

We collaborate closely with insurance underwriters and clients to align fire protection designs with specific risk profiles, coverage requirements, and stakeholder expectations. Through detailed presentations, risk reviews, and iterative feedback, we secure endorsements and approvals, facilitating smoother project progression and enhanced insurability.

Installation Support

Our team provides on-site expertise and oversight during the installation of fire
suppression, detection, and passive protection systems. We ensure adherence to
approved designs, and best practices, conducting regular inspections and quality
checks to prevent errors, reduce downtime, and guarantee systems are installed
correctly for optimal functionality.

Commissioning Support

We assist in the thorough testing and commissioning of fire systems, verifying
performance under simulated conditions to confirm reliability and compliance with
SANS, ASIB, or NFPA standards. Our structured process includes functional tests,
integration checks, and documentation, ensuring systems are fully operational and
ready for use while identifying any final adjustments.

Professional Sign-off

Our certified engineers deliver final professional sign-off and certification upon
successful commissioning, providing authoritative documentation that validates
system integrity and regulatory compliance. This endorsement confirms the
installation meets all design specifications, industry standards, and client
requirements, enabling immediate occupancy or operations with full legal and safety
assurance.

Who Is Ideal for Our Services

Fire Shield Consulting is the ideal partner for businesses, property owners, and industrial operations that prioritise safety, compliance, and efficiency. Our expertise supports construction firms, engineers, building managers, developers, warehouses, and manufacturing facilities seeking reliable fire protection strategies built around their unique risks and operations.As your trusted partner, we’ll help you keep your people and assets safe, maintain compliance with regulations, and save costs through smarter, sustainable fire safety solutions.

Get in Touch Today

Why choose us

Certified Expertise

Our fire protection strategies are developed and implemented by certified professionals with proven industry experience. We ensure every solution meets both local and international safety standards.

Customized Solutions

We understand that every business faces unique risks. That’s why Fire Shield designs tailor-made fire protection systems aligned with your specific operations, layout, and safety priorities.

Regulatory Compliance

Stay fully compliant with SANS and NFPA standards. Our consulting, installation, and maintenance services help you meet — and often exceed — legal and insurance fire safety requirements.

Advanced Technology

We use cutting-edge fire detection, suppression, and monitoring systems that enhance protection, minimize downtime, and boost operational efficiency

South Africa Coverage

Wherever your business operates, Fire Shield Consulting provides consistent, reliable, and high-quality fire protection solutions across South Africa.

What our client say about us

"Consulting for a complete fire safety audit and compliance review, and the experience exceeded expectations. Their team was professional, detailed, and highly knowledgeable. They identified key areas of improvement, helped us align with SANS standards, and provided practical recommendations that enhanced our overall safety compliance. We’ll definitely continue working with them"

T. Mokoena

HR Manager

"Fire Shield Consulting provided exceptional support during our facility’s fire risk assessment. Their engineers were efficient, thorough, and explained every detail in a way that made complex regulations easy to understand. The service saved us valuable time and ensured our building met all legal and safety requirements. Highly reliable and professional service"

S. Khumalo

Operations Manager

"We hired Fire Shield Consulting to design a fire protection system for our mining operation. The team delivered a tailor-made solution that perfectly fit our operational needs and budget. Their technical expertise and commitment to safety were evident throughout the process. We now have complete confidence in our fire protection systems thanks to their outstanding work"

M. Dlamini

Cape Town

Some organizations we have worked with

FIRE SAFETY

Fire safety is more than just having extinguishers and alarms — it’s about creating awareness, preventing risks, and being prepared to act when it matters most. In this section, we explore essential tips, strategies, and insights to help you protect lives, property, and businesses from the dangers of fire.

5 Key Steps to Effective Fire Risk Management in Your Business

Managing fire risks isn’t about reacting to danger — it’s about preventing it before it starts. Every building and operation carries its own set of risks, and understanding them is the first step to staying safe.

4 Hidden Costs of Ignoring Fire Compliance

Skipping fire compliance might save you time now, but it can cost you much more later. Non-compliance affects not just your finances — it puts people and reputations at risk.

How Regular Fire Equipment Maintenance Protects Your Business

Even the best fire systems fail without proper maintenance. A neglected extinguisher or alarm system can turn a small fire into a total loss.

Building a Fire Safety Culture That Lasts

Fire safety isn’t just about systems — it’s about people. A strong safety culture turns compliance into a shared responsibility rather than a top-down requirement.

Why Fire Safety Audits Should Be on Every Manager’s Calendar

Fire safety audits aren’t just about compliance — they’re about confidence. They help you confirm that your protection systems actually work when you need them most.

About Us

Fire Shield Consulting is a leading fire engineering consultancy dedicated to delivering tailored fire protection solutions for commercial, industrial, and mining clients. Our commitment to safety, compliance, and business continuity drives us to deliver innovative fire protection strategies. Our team of registered professional engineers leverages industry-leading expertise, utilizing advanced fire modelling tools, fire risk assessments, and performance-based designs to deliver scalable, compliant, and cost-effective solutions. We ensure every project meets your unique fire safety needs while adhering to fire codes, standards, regulations, and bylaws.
We are based in Pretoria but we serve in all nine provinces in South Africa.

Vision

To deliver innovative and compliant fire protection solutions that safeguard lives, property, and business continuity. We are committed to setting the benchmark in fire engineering excellence through advanced technology, professional expertise, and unwavering integrity

Mision

To be South Africa’s most trusted and leading fire engineering consultancy — known for our reliability, innovation, and contribution to a safer built environment across all industries.

Values

✔ Integrity – We uphold honesty, transparency, and accountability in every project we undertake.✔ Excellence – We strive for precision, professionalism, and the highest standards of quality in our designs and services.✔ Innovation – We embrace modern technology, data-driven solutions, and creative thinking to advance fire safety.✔ Compliance – We align every solution with the latest SANS, ASIB, and NFPA standards to ensure legal and technical assurance.✔ Client Commitment – We build lasting relationships by understanding our clients’ needs and delivering dependable, practical results.

Why choose us

1. Expertise You Can Trust – Our team of registered fire engineers brings years of experience in designing and implementing effective fire protection strategies.2. Tailored Solutions – We assess your facility’s unique risks and operational needs to provide customized fire safety plans.3. Advanced Technology – Utilizing fire modeling and hazard analysis, we create precise, practical strategies that enhance safety and efficiency.4. Regulatory Compliance – We ensure all solutions meet SANS, ASIB, and NFPA standards, keeping your operations fully compliant.5. Peace of Mind – From emergency preparedness to system reliability, we deliver clear, actionable solutions that protect your people and assets.

Services

We provide comprehensive fire protection solutions tailored to the unique needs of commercial, industrial, mining, manufacturing, and oil & gas operations. From compliance audits and risk assessments to innovative fire system design and safety consulting, our services ensure your business stays safe, compliant, and prepared for any fire-related risks

Compliance & Risk Management services

Fire Risk Assessments

Our fire risk assessments identify potential fire hazards, evaluate risks, and recommend tailored mitigation strategies to ensure occupant safety and asset protection. Conducted by experienced professionals, these assessments comply with local and international Fire Regulations.

Compliance Audits

We conduct thorough compliance audits to verify that your fire protection systems and procedures meet regulatory requirements. Our audits assess adherence to SANS, ASIB, or NFPA standards, identifying areas of non-compliance and providing actionable recommendations to ensure full regulatory alignment and enhanced safety.

Gap Analysis

Our gap analysis services evaluate existing fire safety measures against industry standards and best practices. By identifying deficiencies and areas for improvement, we provide detailed reports and prioritized recommendations to bridge gaps, ensuring robust fire protection and compliance with SANS 10400, ASIB, or NFPA requirements.

Fire Engineering & Design services

Rational Fire Designs

Our rational fire design solutions provide innovative, performance-based approaches to fire safety, optimizing protection while meeting specific project requirements. Using advanced engineering techniques and fire modelling tools, we develop tailored strategies that balance safety, functionality, and cost-effectiveness.

Fire Suppression systems

Protect your facility, assets, and employees with expertly designed fire suppression systems. At Fireshield Consulting, we provide customized solutions that detect and suppress fires quickly, minimizing damage and downtime. Our systems are fully compliant with SANS, ASIB, and NFPA standards, giving you peace of mind and enhanced safety.

Detection & Alarm Systems

We design and implement fire detection and alarm systems tailored to each application, in full compliance with SANS 10139 or NFPA 72 standards. Our solutions ensure rapid, reliable detection and prompt response to protect people,
assets, and operations.

Passive Fire Protection

Our passive fire protection solutions are engineered to contain fires and limit their spread, enhancing safety and protecting structures without active intervention. These systems include fire rated walls, doors, fire sealing, and compartmentation
measures, designed to maintain structural integrity and prevent fire and smoke propagation.

Fire & Smoke Modelling

We use CFAST and PYROSIM to simulate fire growth, smoke movement, and heat transfer within buildings. These models provide valuable insights into occupant safety, evacuation times, and system performance.

Evacuation Modelling

We use PATHFINDER to simulate occupant movement and evacuation scenarios during a fire or emergency. This analysis helps assess evacuation times, identify potential bottlenecks, and optimize building layouts to ensure safe and efficient egress.

Implementation & Certification

Underwriters & Client Engagements

We collaborate closely with insurance underwriters and clients to align fire protection designs with specific risk profiles, coverage requirements, and stakeholder expectations. Through detailed presentations, risk reviews, and iterative feedback, we secure endorsements and approvals, facilitating smoother project progression and enhanced insurability.

Installation Support

Our team provides on-site expertise and oversight during the installation of fire suppression, detection, and passive protection systems. We ensure adherence to approved designs, and best practices, conducting regular inspections and quality checks to prevent errors, reduce downtime, and guarantee systems are installed correctly for optimal functionality.

Commissioning Support

We assist in the thorough testing and commissioning of fire systems, verifying performance under simulated conditions to confirm reliability and compliance with SANS, ASIB, or NFPA standards. Our structured process includes functional tests, integration checks, and documentation, ensuring systems are fully operational and ready for use while identifying any final adjustments.

Professional Sign-off

Our certified engineers deliver final professional sign-off and certification upon successful commissioning, providing authoritative documentation that validates system integrity and regulatory compliance. This endorsement confirms the installation meets all design specifications, industry standards, and client requirements, enabling immediate occupancy or operations with full legal and safety assurance..

Fire Risk Assessments

Our detailed fire risk assessments go beyond identifying hazards — we provide a complete understanding of your fire safety position. Once risks are identified, our team develops practical and cost-effective mitigation measures suited to your facility’s operations.We evaluate your fire detection systems, suppression equipment, emergency exits, and staff preparedness to ensure that every element meets safety standards. Our goal is to help you reduce potential fire hazards, protect lives and assets, and maintain full compliance with South African and international fire safety regulations.Each assessment concludes with a comprehensive report outlining key risks, recommended improvements, and an action plan to enhance your overall fire safety and resilience.

Fire Risk Assessments

Our detailed fire risk assessments go beyond identifying hazards — we provide a complete understanding of your fire safety position. Once risks are identified, our team develops practical and cost-effective mitigation measures suited to your facility’s operations.We evaluate your fire detection systems, suppression equipment, emergency exits, and staff preparedness to ensure that every element meets safety standards. Our goal is to help you reduce potential fire hazards, protect lives and assets, and maintain full compliance with South African and international fire safety regulations.Each assessment concludes with a comprehensive report outlining key risks, recommended improvements, and an action plan to enhance your overall fire safety and resilience.

Compliance Audits

Our compliance audits provide a deeper evaluation of your fire protection systems, documentation, and procedures. We verify that every component — from equipment maintenance to emergency protocols — aligns with the latest SANS, ASIB, or NFPA standards.Following the audit, you’ll receive a detailed report highlighting any non-conformances, with clear, actionable recommendations to correct them. Our process ensures your facility not only meets legal requirements but also operates at the highest level of fire safety readiness.Through this service, we help organisations avoid penalties, strengthen operational safety, and maintain full regulatory confidence.

Compliance Audits

Our compliance audits provide a deeper evaluation of your fire protection systems, documentation, and procedures. We verify that every component — from equipment maintenance to emergency protocols — aligns with the latest SANS, ASIB, or NFPA standards.Following the audit, you’ll receive a detailed report highlighting any non-conformances, with clear, actionable recommendations to correct them. Our process ensures your facility not only meets legal requirements but also operates at the highest level of fire safety readiness.Through this service, we help organisations avoid penalties, strengthen operational safety, and maintain full regulatory confidence.

Gap Analysis

Our gap analysis digs deeper into your current fire safety systems to identify weaknesses that could compromise compliance or performance. We benchmark your existing measures against SANS 10400, ASIB, and NFPA standards, assessing both design and operational practices.The result is a detailed, prioritised action plan outlining what needs to be upgraded, improved, or added to achieve full compliance and optimal fire protection.This service is ideal for facilities preparing for inspections, insurance reviews, or major upgrades, ensuring all fire safety gaps are effectively closed.

Gap Analysis

Our gap analysis digs deeper into your current fire safety systems to identify weaknesses that could compromise compliance or performance. We benchmark your existing measures against SANS 10400, ASIB, and NFPA standards, assessing both design and operational practices.The result is a detailed, prioritised action plan outlining what needs to be upgraded, improved, or added to achieve full compliance and optimal fire protection.This service is ideal for facilities preparing for inspections, insurance reviews, or major upgrades, ensuring all fire safety gaps are effectively closed.

Rational Fire Designs

Our rational fire design service offers a performance-based engineering approach tailored to each project’s specific needs. By applying advanced modelling tools and design principles, we create flexible, efficient, and regulation-compliant fire protection strategies.This method allows us to optimise layouts, reduce unnecessary costs, and maintain architectural intent without compromising safety.Every design is reviewed and approved by qualified fire engineers, ensuring it meets all statutory and performance objectives while offering maximum protection for people and property.

Rational Fire Designs

Our rational fire design service offers a performance-based engineering approach tailored to each project’s specific needs. By applying advanced modelling tools and design principles, we create flexible, efficient, and regulation-compliant fire protection strategies.This method allows us to optimise layouts, reduce unnecessary costs, and maintain architectural intent without compromising safety.Every design is reviewed and approved by qualified fire engineers, ensuring it meets all statutory and performance objectives while offering maximum protection for people and property.

Detection & Alarm Systems

Our fire detection and alarm system solutions are built around reliability, speed, and compliance. Using SANS 10139 and NFPA 72 as guiding standards, we design systems that detect fires early, trigger timely alarms, and enable rapid response to protect occupants and assets.From manual call points to intelligent smoke and heat detectors, every system is customised to suit your environment and operational requirements.We also provide end-to-end commissioning, testing, and maintenance support to ensure ongoing performance and full compliance throughout the system’s lifecycle.

Detection & Alarm Systems

Our fire detection and alarm system solutions are built around reliability, speed, and compliance. Using SANS 10139 and NFPA 72 as guiding standards, we design systems that detect fires early, trigger timely alarms, and enable rapid response to protect occupants and assets.From manual call points to intelligent smoke and heat detectors, every system is customised to suit your environment and operational requirements.We also provide end-to-end commissioning, testing, and maintenance support to ensure ongoing performance and full compliance throughout the system’s lifecycle.

Passive Fire Protection

Our passive fire protection solutions are designed to stop fires from spreading before they escalate. These systems — including fire-rated walls, doors, sealants, and compartmentation barriers — ensure that flames and smoke are contained, buying precious time for safe evacuation and emergency response.Each installation complies with SANS and international standards, maintaining the building’s integrity under fire conditions.By integrating passive protection into your structure, you enhance overall safety and reduce potential damage, even in the event of active system failure.

Passive Fire Protection

Our passive fire protection solutions are designed to stop fires from spreading before they escalate. These systems — including fire-rated walls, doors, sealants, and compartmentation barriers — ensure that flames and smoke are contained, buying precious time for safe evacuation and emergency response.Each installation complies with SANS and international standards, maintaining the building’s integrity under fire conditions.By integrating passive protection into your structure, you enhance overall safety and reduce potential damage, even in the event of active system failure.

Fire & Smoke Modelling

Using advanced tools such as CFAST and PYROSIM, we simulate fire development, smoke movement, and heat transfer to assess how a fire could behave in real conditions.These simulations help predict occupant safety levels, test system performance, and refine design layouts before construction or modification.Our fire modelling reports provide valuable insight for engineers, architects, and safety officers, supporting data-driven decisions that improve both design efficiency and fire resilience.

Fire & Smoke Modelling

Using advanced tools such as CFAST and PYROSIM, we simulate fire development, smoke movement, and heat transfer to assess how a fire could behave in real conditions.These simulations help predict occupant safety levels, test system performance, and refine design layouts before construction or modification.Our fire modelling reports provide valuable insight for engineers, architects, and safety officers, supporting data-driven decisions that improve both design efficiency and fire resilience.

Evacuation Modelling

With PATHFINDER software, we simulate how people move and evacuate during a fire or emergency. This analysis evaluates evacuation times, identifies bottlenecks, and helps improve the flow of people to safe exits.By studying occupant behaviour, density, and escape routes, we can recommend layout adjustments and procedural improvements that significantly enhance safety outcomes.Evacuation modelling supports compliance, optimises design, and ensures your emergency planning is both practical and effective.

Evacuation Modelling

With PATHFINDER software, we simulate how people move and evacuate during a fire or emergency. This analysis evaluates evacuation times, identifies bottlenecks, and helps improve the flow of people to safe exits.By studying occupant behaviour, density, and escape routes, we can recommend layout adjustments and procedural improvements that significantly enhance safety outcomes.Evacuation modelling supports compliance, optimises design, and ensures your emergency planning is both practical and effective.

Underwriters & Client Engagements

Our insurance and risk alignment service ensures that your fire protection strategies not only meet technical and legal standards but also align with your insurance and risk management objectives. We work collaboratively with underwriters, insurers, and project stakeholders to bridge the gap between compliance and insurability.Through comprehensive design reviews, risk profiling, and stakeholder consultations, we identify potential coverage challenges early and provide clear recommendations to address them. Our engineers prepare detailed technical submissions, attend insurer reviews, and present risk mitigation justifications that streamline approval processes.This proactive approach minimizes costly design changes, accelerates project timelines, and ensures your fire protection systems receive full insurance endorsement. The result is a coordinated, compliant, and fully insurable fire safety strategy that supports both operational and financial resilience.

Underwriters & Client Engagements

Our insurance and risk alignment service ensures that your fire protection strategies not only meet technical and legal standards but also align with your insurance and risk management objectives. We work collaboratively with underwriters, insurers, and project stakeholders to bridge the gap between compliance and insurability.Through comprehensive design reviews, risk profiling, and stakeholder consultations, we identify potential coverage challenges early and provide clear recommendations to address them. Our engineers prepare detailed technical submissions, attend insurer reviews, and present risk mitigation justifications that streamline approval processes.This proactive approach minimizes costly design changes, accelerates project timelines, and ensures your fire protection systems receive full insurance endorsement. The result is a coordinated, compliant, and fully insurable fire safety strategy that supports both operational and financial resilience.

Installation Support

Our installation oversight service ensures that every fire protection system is installed correctly, safely, and according to approved specifications. We provide hands-on site supervision throughout the installation of suppression, detection, and passive protection systems, working closely with contractors and suppliers to ensure seamless execution.Our engineers perform detailed inspections and quality checks at each phase of installation, verifying component integrity, correct placement, and compliance with design drawings and standards. This reduces the risk of rework, delays, and costly system failures.By maintaining a continuous presence during installation, we ensure that workmanship quality meets both regulatory and client expectations. The outcome is a robust, fully functional fire protection system that performs as designed — protecting your people, assets, and operations from day one.

Installation Support

Our installation oversight service ensures that every fire protection system is installed correctly, safely, and according to approved specifications. We provide hands-on site supervision throughout the installation of suppression, detection, and passive protection systems, working closely with contractors and suppliers to ensure seamless execution.Our engineers perform detailed inspections and quality checks at each phase of installation, verifying component integrity, correct placement, and compliance with design drawings and standards. This reduces the risk of rework, delays, and costly system failures.By maintaining a continuous presence during installation, we ensure that workmanship quality meets both regulatory and client expectations. The outcome is a robust, fully functional fire protection system that performs as designed — protecting your people, assets, and operations from day one.

Commissioning Support

Before systems are handed over for operation, we conduct comprehensive testing and commissioning to confirm functionality, reliability, and full regulatory compliance. Our structured process includes simulated fire scenarios, functional tests, and system integration checks to ensure that all components operate in harmony under real-world conditions.Each test is carefully documented, and any deviations are immediately addressed with corrective measures. Our engineers verify alarm response times, suppression system discharge performance, and control panel communication accuracy to ensure total system reliability.The commissioning phase concludes with a detailed report outlining test results, findings, and recommendations. This final verification gives you confidence that your fire protection systems are fully operational, compliant with SANS, ASIB, or NFPA standards, and ready to safeguard your facility.

Commissioning Support

Before systems are handed over for operation, we conduct comprehensive testing and commissioning to confirm functionality, reliability, and full regulatory compliance. Our structured process includes simulated fire scenarios, functional tests, and system integration checks to ensure that all components operate in harmony under real-world conditions.Each test is carefully documented, and any deviations are immediately addressed with corrective measures. Our engineers verify alarm response times, suppression system discharge performance, and control panel communication accuracy to ensure total system reliability.The commissioning phase concludes with a detailed report outlining test results, findings, and recommendations. This final verification gives you confidence that your fire protection systems are fully operational, compliant with SANS, ASIB, or NFPA standards, and ready to safeguard your facility.

Professional Sign-off

Once systems have successfully passed all tests and inspections, our certified professional engineers provide final sign-off and compliance certification. This formal documentation confirms that your fire protection systems meet all design, regulatory, and performance standards — ensuring full legal and safety assurance.We issue official certificates of compliance, along with as-built documentation, commissioning reports, and maintenance recommendations. These records serve as proof of conformity for insurance, local authorities, and safety audits.Our certification service provides peace of mind — knowing your systems have been professionally validated by industry experts. With our endorsement, you can proceed to occupancy or operational launch with complete confidence that your facility meets every fire safety and regulatory requirement.

Professional Sign-off

Once systems have successfully passed all tests and inspections, our certified professional engineers provide final sign-off and compliance certification. This formal documentation confirms that your fire protection systems meet all design, regulatory, and performance standards — ensuring full legal and safety assurance.We issue official certificates of compliance, along with as-built documentation, commissioning reports, and maintenance recommendations. These records serve as proof of conformity for insurance, local authorities, and safety audits.Our certification service provides peace of mind — knowing your systems have been professionally validated by industry experts. With our endorsement, you can proceed to occupancy or operational launch with complete confidence that your facility meets every fire safety and regulatory requirement.

Fire Suppression Systems

Sprinkler System

Our Sprinkler Systems are designed to detect and control fires early, protecting lives and assets. Tailored for each application and compliant with SANS 10287, ASIB, or NFPA 13, they offer reliable, efficient, and cost-effective protection.

Deluge System

Ideal for high-risk areas, Deluge Systems release large volumes of water instantly through open nozzles. Engineered to NFPA 15, they provide rapid, dependable fire suppression where it matters most.

Manual Fire Suppression Systems

We provide manual fire suppression solutions designed for quick and effective first response by trained personnel. Our systems are strategically positioned to maximize accessibility and coverage, and include:-Hose Reels
-Hydrants
-Fire Extinguishers

Foam Suppression systems

Our foam suppression solutions are designed to provide fast and effective protection against flammable liquid fires. Using low-, medium-, or high- expansion foam technologies, we engineer systems that create a stable foam blanket to quickly suppress flames, cool surfaces, and prevent re-ignition. All designs are tailored to site-specific risks and fully comply with international standards such as NFPA 11.

Gas Suppression system

Gas Suppression system
We design fit-for-purpose total flooding and in-cabinet gas suppression systems, customized for each application. All solutions are fully compliant with SANS 14520 or NFPA 2001, ensuring effective protection of your valuable assets.

Fire Water Reticulation Systems

Fire Water Reticulation Systems
We specialize in the design of complete fire water reticulation systems, including pumps, storage tanks, and ring mains. All systems are hydraulically sized and engineered to comply with SANS, ASIB, or NFPA standards, ensuring full compliance and reliable performance to meet your facility’s safety requirements.

Fire Suppression Systems

Sprinkler System

Our Sprinkler Systems are designed to detect and control fires early, protecting lives and assets. Tailored for each application and compliant with SANS 10287, ASIB, or NFPA 13, they offer reliable, efficient, and cost-effective protection.

Deluge System

Ideal for high-risk areas, Deluge Systems release large volumes of water instantly through open nozzles. Engineered to NFPA 15, they provide rapid, dependable fire suppression where it matters most.

Manual Fire Suppression Systems

We provide manual fire suppression solutions designed for quick and effective first response by trained personnel. Our systems are strategically positioned to maximize accessibility and coverage, and include:-Hose Reels
-Hydrants
-Fire Extinguishers

Foam Suppression systems

Our foam suppression solutions are designed to provide fast and effective protection against flammable liquid fires. Using low-, medium-, or high- expansion foam technologies, we engineer systems that create a stable foam blanket to quickly suppress flames, cool surfaces, and prevent re-ignition. All designs are tailored to site-specific risks and fully comply with international standards such as NFPA 11.

Gas Suppression system

Gas Suppression system
We design fit-for-purpose total flooding and in-cabinet gas suppression systems, customized for each application. All solutions are fully compliant with SANS 14520 or NFPA 2001, ensuring effective protection of your valuable assets.

Fire Water Reticulation Systems

Fire Water Reticulation Systems
We specialize in the design of complete fire water reticulation systems, including pumps, storage tanks, and ring mains. All systems are hydraulically sized and engineered to comply with SANS, ASIB, or NFPA standards, ensuring full compliance and reliable performance to meet your facility’s safety requirements.

5 Key Steps to Effective Fire Risk Management in Your Business

Managing fire risks isn’t about reacting to danger — it’s about preventing it before it starts. Every building and operation carries its own set of risks, and understanding them is the first step to staying safe.1. Identify Your Hazards Early
Inspect your workplace regularly to spot flammable materials, potential ignition sources, or obstructed escape routes. A proactive approach helps you address small risks before they become serious threats.
2. Assess the Level of Risk
Not all hazards are equal. Determine which areas or processes pose the greatest danger and prioritize them in your fire strategy.
3. Review Fire Safety Systems
Test alarms, sprinklers, and extinguishers at scheduled intervals to ensure they’re fully functional and compliant with SANS and ASIB standards.
4. Keep Documentation Current
Outdated evacuation plans or maintenance logs can fail you in an audit or emergency. Keep everything up to date and easily accessible.
5. Educate and Involve Your Team
Your employees are the front line of fire prevention. Conduct regular drills and refresher sessions to maintain awareness.

💡 Pro Tip: A professional fire risk assessment can reveal hidden vulnerabilities you might overlook. It’s an investment that protects both lives and business continuity.

4 Hidden Costs of Ignoring Fire Compliance

Skipping fire compliance might save you time now, but it can cost you much more later. Non-compliance affects not just your finances — it puts people and reputations at risk.1. Financial Penalties Add Up
Authorities and insurers impose strict fines for failing to meet SANS and ASIB standards. These costs can easily exceed the price of proper compliance.
2. Insurance Claims May Be Denied
If your systems weren’t maintained or certified, your insurer can reject claims — even if the fire wasn’t your fault.
3. Operational Downtime Hurts More Than You Think
A fire incident or compliance breach can halt production or business activity for weeks, costing more than repairs themselves.
4. Reputation Damage Is Hard to Fix
One public compliance failure can make clients and partners question your reliability.

đź’ˇ Pro Tip: Conducting a compliance audit annually helps identify small lapses before they become expensive problems

How Regular Fire Equipment Maintenance Protects Your Businesses.

Maintenance Protects Your BusinessEven the best fire systems fail without proper maintenance. A neglected extinguisher or alarm system can turn a small fire into a total loss.1. Schedule Routine Inspections
Follow manufacturer and SANS 1475 guidelines for extinguishers, sprinklers, and detection systems.
2. Keep Detailed Service Records
Always document maintenance dates, results, and technician credentials. Inspectors and insurers rely on this proof of compliance.
3. Replace Worn or Expired Components
Old hoses, corroded fittings, or empty cylinders are ticking time bombs. Replace them before they fail.
4. Train Staff on Equipment Use
Even a perfect extinguisher is useless if no one knows how to operate it safely.
5. Test Alarm and Detection Systems
Perform live tests periodically to confirm that your alarms, sirens, and monitoring devices are fully functional.

💡 Pro Tip: Outsourcing maintenance to certified fire technicians ensures every service meets legal and technical standards — giving you peace of mind when it matters most.

Building a Fire Safety Culture That Lasts

Fire safety isn’t just about systems — it’s about people. A strong safety culture turns compliance into a shared responsibility rather than a top-down requirement.1. Start with Awareness
Educate employees on how fires start and what prevention looks like in their specific roles.
2. Lead by Example
When management treats fire safety seriously, the rest of the team will follow suit.
3. Make Training a Routine, Not a Formality
Run short, engaging fire drills and awareness sessions regularly. Keep them realistic and relevant to your environment.
4. Encourage Reporting
Make it easy for staff to report blocked exits, faulty equipment, or potential hazards — and reward proactive behavior.
5. Review and Refresh Policies Often
Your fire plan should evolve as your operations do. Revisit your procedures at least once a year.

💡 Pro Tip: Consistency is key — small, regular actions build a fire-safe mindset faster than one big annual drill

Why Fire Safety Audits Should Be on Every Manager’s Calendar

Fire safety audits aren’t just about compliance — they’re about confidence. They help you confirm that your protection systems actually work when you need them most.1. Verify Compliance with Standards
Audits measure how well your systems align with SANS, ASIB, and NFPA regulations.
2. Identify Gaps Before They Become Problems
A thorough audit highlights outdated equipment, missing documentation, or unsafe practices early.
3. Strengthen Emergency Readiness
An audit evaluates evacuation plans, signage, and training effectiveness, ensuring your team is truly prepared.
4. Simplify Insurance and Legal Processes
Audit reports provide documented proof that you’re compliant — valuable in case of inspection or claim review.
5. Turn Insights into Action
Use audit findings to create a realistic improvement plan that keeps your safety strategy evolving.

💡 Pro Tip: Schedule your fire safety audit annually — ideally before your insurance renewal — to keep your compliance airtight and stress-free.

Get in Touch

Get in Touch

Get in Touch

Get in Touch

Get in Touch

Get in Touch